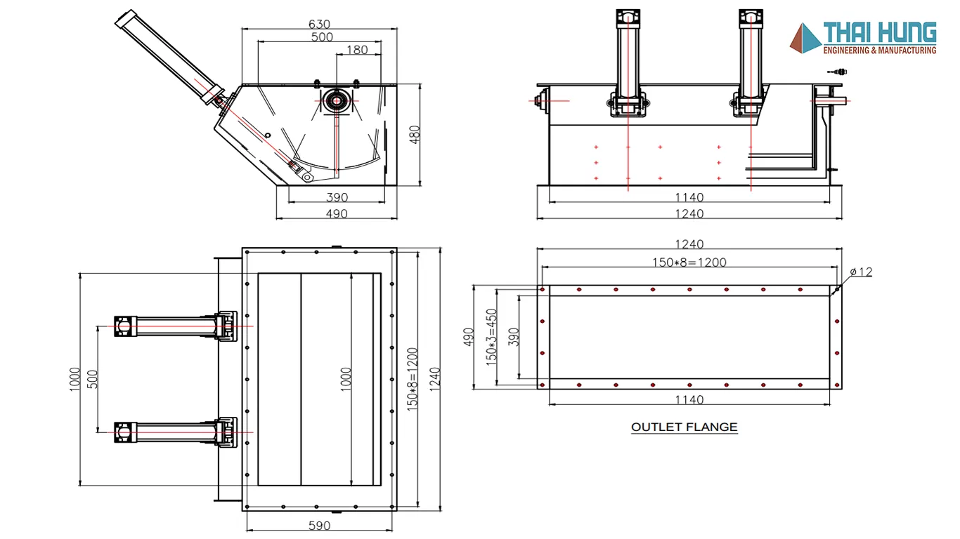
1. Đảm Bảo Chính Xác Kích Thước và Cấu Tạo
Bản vẽ Slide Gate cung cấp chi tiết về kích thước, cấu tạo, và vật liệu của thiết bị, giúp các kỹ sư và nhà thầu nắm rõ thiết kế trước khi sản xuất hoặc lắp đặt. Điều này rất quan trọng để đảm bảo Slide Gate phù hợp với hệ thống hiện tại và hoạt động một cách chính xác.

2. Hỗ Trợ Lắp Đặt và Bảo Trì Hiệu Quả
Bản vẽ Slide Gate giúp xác định vị trí lắp đặt chính xác trong hệ thống, từ đó giảm thiểu sai sót và tiết kiệm thời gian thi công. Ngoài ra, bản vẽ còn cung cấp thông tin về các điểm cần bảo trì, giúp nhân viên kỹ thuật dễ dàng thực hiện các công việc bảo dưỡng định kỳ.

3. Đảm Bảo An Toàn và Tối Ưu Hóa Hiệu Suất
Việc có bản vẽ chi tiết giúp đảm bảo thiết bị được sản xuất và lắp đặt theo đúng tiêu chuẩn an toàn, tránh những rủi ro không mong muốn trong quá trình vận hành. Slide Gate hoạt động ổn định sẽ giúp tối ưu hóa hiệu suất của toàn bộ dây chuyền sản xuất, từ đó nâng cao chất lượng sản phẩm.

4. Hỗ Trợ Quy Trình Đánh Giá và Cải Tiến
Bản vẽ Slide Gate còn là cơ sở quan trọng cho các quy trình đánh giá và cải tiến sau này. Khi cần nâng cấp hoặc thay đổi thiết bị, bản vẽ giúp các kỹ sư dễ dàng xác định các yếu tố cần điều chỉnh để phù hợp với yêu cầu mới của hệ thống.

Kết Luận
Bản vẽ Slide Gate không chỉ là tài liệu kỹ thuật mà còn là công cụ hỗ trợ đắc lực trong quá trình lắp đặt, bảo trì và nâng cao hiệu suất của hệ thống sản xuất. Sự chính xác và chi tiết của bản vẽ giúp đảm bảo an toàn, tiết kiệm chi phí, và tối ưu hóa hoạt động của nhà máy, góp phần mang lại hiệu quả kinh tế cao.










